Top Floor Apartment for Auction Southwark London SE1
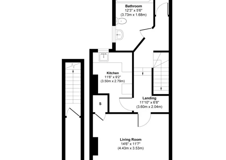
The property comprises a chain-free, first (top) floor, one bedroom self-contained flat, which benefits from being situated in a desirable location that benefits from all the amenities Bermondsey and Borough has to offer. A new 990 year lease will be granted on completion.
Thinking of selling land or property in Southwark?
Complete our online form for a free, no-obligation auction appraisal.
Book a free auction appraisalFor further information about this property
Register- Detailed property descriptions and addresses, streetviews, Google Maps and virtual tours.
- Auctioneers' website links, contact details and catalogues
- Auctioneers' directory providing contact information for auction houses around the UK
- Auction calendar displaying forthcoming auction dates
- MyUKAL facilities enabling you to save properties of interest and set up property alerts.

