Freehold Site with Planning for Auction Sandwich CT13
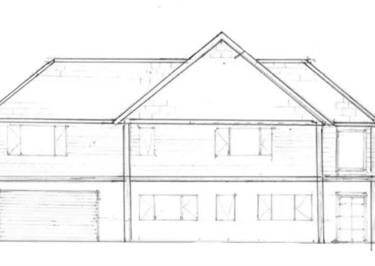
Situated in a popular village, this freehold site, which lies in a semi-rural location, is offered with Planning Permission for two detached houses.
Thinking of selling land or property in Sandwich?
Complete our online form for a free, no-obligation auction appraisal.
Book a free auction appraisalFor further information about this property
Register- Detailed property descriptions and addresses, streetviews, Google Maps and virtual tours.
- Auctioneers' website links, contact details and catalogues
- Auctioneers' directory providing contact information for auction houses around the UK
- Auction calendar displaying forthcoming auction dates
- MyUKAL facilities enabling you to save properties of interest and set up property alerts.

