Development Opportunity for Auction Warrington WA5
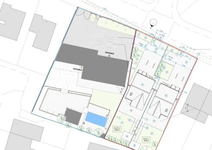
An exceptional opportunity to acquire a private plot, with full planning permission granted for the construction of two executive four-bedroom detached homes.
Thinking of selling land or property in Warrington?
Complete our online form for a free, no-obligation auction appraisal.
Book a free auction appraisalFor further information about this property
Register- Detailed property descriptions and addresses, streetviews, Google Maps and virtual tours.
- Auctioneers' website links, contact details and catalogues
- Auctioneers' directory providing contact information for auction houses around the UK
- Auction calendar displaying forthcoming auction dates
- MyUKAL facilities enabling you to save properties of interest and set up property alerts.

