Development Opportunity for Auction Stoke on Trent ST4
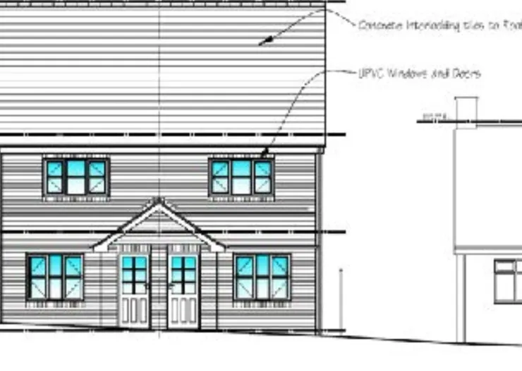
Vacant land with potential for alternative uses stpp. Expired planning for 2 x 2 bed semi-detached houses. Site area: 0.07 Acre (283sq m).
Thinking of selling land or property in Stoke-on-Trent?
Complete our online form for a free, no-obligation auction appraisal.
Book a free auction appraisalFor further information about this property
Register- Detailed property descriptions and addresses, streetviews, Google Maps and virtual tours.
- Auctioneers' website links, contact details and catalogues
- Auctioneers' directory providing contact information for auction houses around the UK
- Auction calendar displaying forthcoming auction dates
- MyUKAL facilities enabling you to save properties of interest and set up property alerts.


