This page displays filtered property opportunities from UK auctions,
specifically tailored to your search criteria.
Explore both current opportunities and past auction lots within the E14 market
to gain valuable insight into local trends, buyer demand, and guide prices.
Featured properties from previous auctions are included to provide useful context,
helping you make informed investment decisions in this specific market.
A vacant thirty second floor two bedroom flat situated within a purpose built block arranged over ground and thirty eight upper floors. Leasehold. The...
A second floor flat with two bedrooms, two bathrooms and dock views. In need of improvement. Located within a popular development. Remainder of a 99...
Substantial freehold property with redevelopment potential (subject to consents). The property now has a planning use 'E-class', formerly 'B1 use' and...
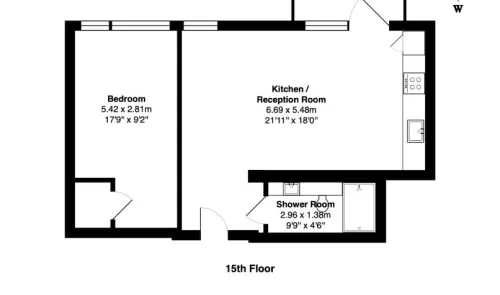
A twenty first floor two bedroom flat situated within a purpose built block arranging over ground and twenty two upper floors. The property benefits...
A vacant third floor two bedroom flat within a purpose built block in an established residential area. Requiring modernisation. Leasehold for a term...
Guide Price £250,000. Long leasehold second floor vacant office unit. Covering over 830 sq ft, this modern office unit is located in a highly sought...
Guide price £550,000. A large three bedroom sixth floor flat, presented in good decorative order, well located for shopping and recreational amenities...